Black Moutains 2
Description
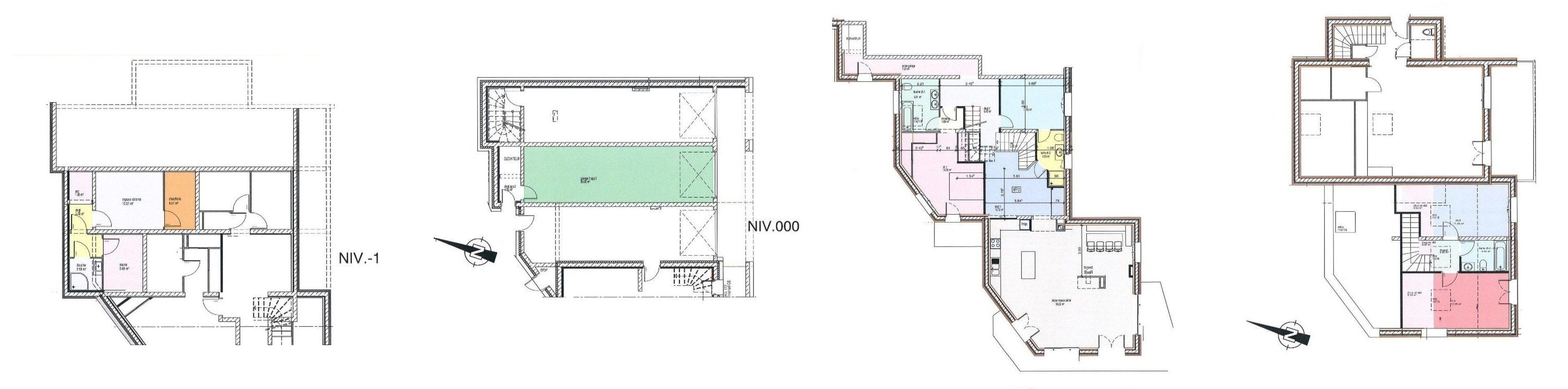
Nestled in the heart of Méribel Village within the renowned Three Valleys ski area, Apartment Black Mountain 2 is a luxurious alpine retreat spanning 193m². This elegant residence comfortably accommodates 6 to 10 guests across four beautifully appointed bedrooms, offering the ideal setting for a high-end ski holiday in the French Alps.
The open-plan living area is thoughtfully designed for socialising, with vaulted ceilings enhancing the sense of space and natural light. A central fireplace anchors the room, surrounded by stylish, alpine-inspired furnishings that create a warm and inviting atmosphere. Adjacent to the lounge, the kitchen stands out with its striking stone walls and darker finishes, offering a cosy yet contemporary space for preparing meals. The dining area, conveniently located beside the kitchen, provides a welcoming setting for gathering after a day on the slopes. From the living space, a wraparound balcony invites guests to enjoy panoramic views and the crisp mountain air.
Downstairs, the apartment features a luxurious Hammam steam room, perfect for easing tired muscles after a day of skiing. A convenient shower room is located right next to it for added comfort.
The four bedrooms are spread across the upper levels, each offering a warm and restful retreat with charming wooden accents and a cosy alpine aesthetic. The master suite includes an en-suite bathroom and elegant touches throughout. Another double room opens onto a private terrace, an ideal spot to unwind in the evening. On the top floor, a third double bedroom shares a bathroom with the children’s bunk room, which sleeps up to four, making this layout ideal for families.
Guests also benefit from access to a private ski room equipped with boot warmers and a garage, ensuring a seamless and comfortable stay at Apartment Black Mountain 2.
The booking price is quoted in the local currency for the exclusive use of the property*
Catered Prices IncludeB&B Prices IncludeSelf Catered Prices Include
Availability and final pricing are always confirmed on booking and subject to change
*some properties may have shared external facilities and this will be explained in the property description above
On the Map





