Reset Password

Your search results

Brunnenhof 3

-

633145 m2

Description

A refined alpine apartment with luxury shared facilities, ideally positioned near the slopes

Completed in 2019, the Brunnenhof residence is a striking addition to Lech’s skyline. The fully renovated building is home to 14 beautifully designed apartments, with every detail thoughtfully refurbished. Guests also enjoy access to exceptional shared facilities, including an indoor swimming pool, spa, hammam and sauna. Combined with Lech’s world-class skiing and vibrant restaurant and social scene, Brunnenhof provides an outstanding base for an unforgettable alpine escape.

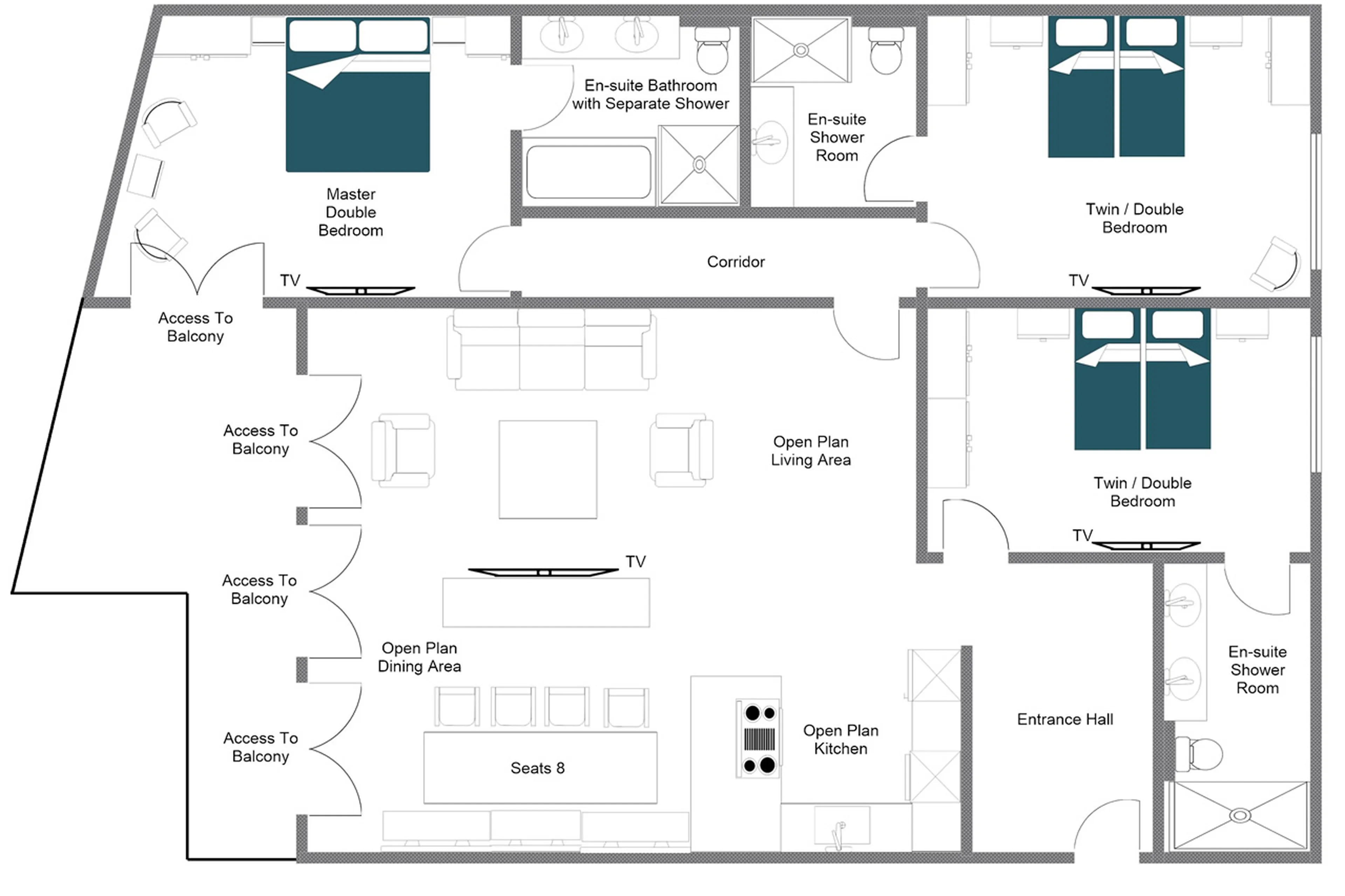
Brunnenhof 3 is a stylish first-floor apartment accommodating up to six guests across three elegant bedrooms, all arranged on a single level. Ideally located close to the centre of Lech, one of the world’s most charming mountain villages, the apartment offers easy access to both superb skiing and a sophisticated après-ski scene. The Schlosskopf two-person chairlift is just a short walk away, delivering skiers to the slopes within minutes. Designed with comfort and convenience in mind, Brunnenhof 3 is perfectly suited to families or groups of friends.

The open-plan kitchen, dining and living area is an inviting space for both relaxation and entertaining. Contemporary furnishings and clean lines are complemented by subtle references to the region’s mountaineering heritage, with vintage photographs and beautifully preserved ski equipment adding character and warmth. The living area comfortably seats six, while a large TV mounted on a central column subtly separates it from the dining space, where an elegant table seats up to eight. An electric fireplace enhances the calm ambience, and the sleek, fully equipped kitchen overlooks the room, ideal for preparing meals when not exploring Lech’s excellent restaurants.

The spacious master bedroom features a luxurious en-suite bathroom with a separate shower, finished in soothing, natural tones. Large windows flood the room with light and illuminate a charming seating area with two armchairs. Two further generously sized double bedrooms each have en-suite shower rooms and are similarly designed to promote rest and relaxation.

With its elegant interiors and access to the residence’s exceptional shared facilities, this outstanding apartment offers something for every guest.

The apartment includes one parking space.

View more
Features
Amenities
Balcony or Terrace
Family/Kid Friendly
Fireplace
Non Smoking
Ski Room
Wifi
Catering Options
B&B
Self Catered
Facilities
Hamman
Sauna
Swimming Pool
Rental Period
Weekly
Bedrooms
Bedroom 1
Double bedroom with balcony access and ensuite bathroom with separate shower
Bedroom 2
Double/Twin bedroom with ensuite shower room
Bedroom 3
Double/Twin bedroom with ensuite shower room
Listing Details
Property ID: 83952
Property Size: 145 m2
Rooms: 0
Bedrooms: 3
Bathrooms: 3
Security Deposit: Confirmed on booking
Family Friendly: Yes
Additional Guests : Please enquire
Self Check-in: No
Staffed Property: Yes
Terms and Conditions
Smoking Allowed
Pets Allowed
Party Allowed
Children Allowed
Please enquire
Price Details
From 9,000 to 30,000 /week
Price for 7 nights:
The booking price is quoted in the local currency for the exclusive use of the property*
Catered
B&B
Self Catered

Catered Prices IncludeB&B Prices IncludeSelf Catered Prices Include
austria/lech/brunnenhof-3
POA = Price On Application
Availability and final pricing are always confirmed on booking and subject to change
*some properties may have shared external facilities and this will be explained in the property description above
Property Address
Address: Strass
Ski Resort:
County: Arlberg
Ski Pass Area: Ski Arlberg
Zip: 6764
Country: Austria
Distance to lifts: 6 minute walk to Schlosskopf chairlift
Distance to resort centre: 10 minute walk

On the Map

From 9,000 to 30,000 /week
×

Check Availability

Add to Favorites
Share
  • Please note: our average rental period during
    high season is weekend to weekend,
    minimum 7 nights. Please contact us
    for shorter stays.
  • Booking with The Luxury Chalet Company

     

    Best Rates – all of our luxury chalets are offered on a price match promise. If you find cheaper prices, let us know and we’ll try our best to beat it.

    Concierge Service – all bookings come with a personal concierge service. Let us tailor make your holiday for a truly unforgettable experience.

    Why Book With Us?

  • ADDITIONAL SERVICES & COSTS
    (unless otherwise stated)
    Flights
    Private transfers to and from resort
    Lift passes
    Ski equipment hire
    Childcare
    In-chalet massage and hairdressing
    Private ski guides, heli-skiing and ski lessons
    Non-skiing activities
    Pre-arrival shopping service
    Helicopter transfers
    Party planning
    Corporate event planning
    Catering
    Cost of food, drink & alcohol
    Local taxes & service charges

    Please enquire about any other specific
    service requests.

  • We know all of our resorts! We can advise and make bookings for heli-skiing, trusted child care, the best places to eat, ski schools, apres ski as well as everything else!

    All of our luxury chalets are hand picked and meet our luxury criteria. We’ll match you with a chalet that suites your desires for any occasion!

    Let The Luxury Chalet Company take care of you. We’ll handle your booking from start to finish and ensure a smooth and easy booking process!

    Concierge Services

  • WE’RE AVAILABLE 24/7
    Our phone line is open 7 days a week
    Mon to Fri 8.30am to 6pm
    Sat 9am to 5pm & Sun 10am to 4pm
    CALL US: 020 7097 3156
    EMAIL: info@luxurychaletco.com
    LIVE CHAT (desktop only)
    • QUESTION ABOUT THIS PROPERTY?

    x
    From 9,000 to 30,000 /week