Reset Password

Your search results

Chalet Atlantique

-

1055405 m2

Description

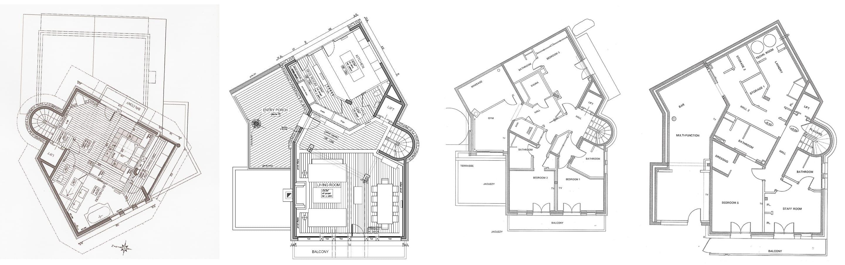
Chalet Atlantique is a luxury retreat in Courchevel 1850, beautifully furnished in a style that blends traditional Alpine charm with refined contemporary elegance. Sleeping up to 10 guests, it enjoys a quiet, private setting close to both the slopes and the resort centre, and offers an exceptional range of facilities for a high-end ski holiday.

The main lounge features sumptuous leather sofas draped with plush fur throws, centred around an open stone fireplace for cosy evenings in. Reclaimed wood, vaulted beam ceilings, and rich, dark tones create an inviting rustic atmosphere, while carefully chosen décor adds sophistication. The living space flows into an elegant dining area that seats all 10 guests, with a separate professional kitchen to ensure privacy. Several balconies throughout the chalet frame panoramic mountain views in every direction.

As expected of a premier chalet in Courchevel 1850, Chalet Atlantique offers an impressive collection of wellness facilities. An outdoor hot tub lets you unwind in warm, bubbling water while admiring the scenery with a drink in hand. Indoors, a dedicated spa area includes a sauna, Hammam, shower, and massage room. A well-equipped gym, complete with a Pilates reformer, keeps guests in top form for the slopes.

For further relaxation and entertainment, the chalet includes a stylish bar area with gold-accented seating and soft furnishings, leading directly into a snug TV lounge for quieter evenings with a film or box set.

Five double bedrooms accommodate up to 10 guests. The upper level is reserved for an expansive master suite with its own fireplace, while the remaining four rooms can be configured as doubles or twins. Each bedroom combines stately timber accents with sophisticated modern design and features an en-suite bathroom and direct access to a balcony or terrace.

Additional amenities include an elevator serving all floors, a ski room with boot warmers and laundry facilities, and a private staff bedroom on the lowest level.

View more
Features
Amenities
Balcony or Terrace
Elevator in Building
Family/Kid Friendly
Fireplace
Non Smoking
Ski Room
Wifi
Catering Options
B&B
Catered
Self Catered
Facilities
Cinema/TV Room
Fitness Facilities
Hamman
Hot Tub
Massage Treatment Room
Sauna
Rental Period
Weekly
Services
Driver/ Shuttle Service*
Bedrooms
Bedroom 1
Double bedroom with ensuite bathroom and private balcony
Bedroom 2
Double/twin bedroom with private balcony and ensuite bathroom
Bedroom 3
Double/twin bedroom with shared balcony and ensuite bathroom
Bedroom 4
Double/twin bedroom with shared balcony and ensuite bathroom
Bedroom 5
Double/twin bedroom with ensuite bathroom
Listing Details
Property ID: 83462
Property Size: 405 m2
Rooms: 0
Bedrooms: 5
Bathrooms: 5
Security Deposit: Confirmed on booking
Family Friendly: Yes
Additional Guests : Please enquire
Self Check-in: No
Staffed Property: Yes
Terms and Conditions
Smoking Allowed
Pets Allowed
Party Allowed
Children Allowed
Please enquire
Price Details
From 50,000 to 140,000 /week
Price for 7 nights:
The booking price is quoted in the local currency for the exclusive use of the property*
Catered
B&B
Self Catered

Catered Prices IncludeB&B Prices IncludeSelf Catered Prices Include
france/courchevel-1850/chalet-atlantique
POA = Price On Application
Availability and final pricing are always confirmed on booking and subject to change
*some properties may have shared external facilities and this will be explained in the property description above
Property Address
Address: Lot. de Cospillot
Region:
Ski Resort:
Ski Pass Area: Three Valleys
Zip: 73120
Country: France
Distance to piste: Cospilliot Piste, 100m
Distance to lifts: 1 minute drive
Distance to resort centre: 1 minute drive / 5 minute walk

On the Map

From 50,000 to 140,000 /week
×

Check Availability

Add to Favorites
Share
  • Please note: our average rental period during
    high season is weekend to weekend,
    minimum 7 nights. Please contact us
    for shorter stays.
  • Booking with The Luxury Chalet Company

     

    Best Rates – all of our luxury chalets are offered on a price match promise. If you find cheaper prices, let us know and we’ll try our best to beat it.

    Concierge Service – all bookings come with a personal concierge service. Let us tailor make your holiday for a truly unforgettable experience.

    Why Book With Us?

  • ADDITIONAL SERVICES & COSTS
    (unless otherwise stated)
    Flights
    Private transfers to and from resort
    Lift passes
    Ski equipment hire
    Childcare
    In-chalet massage and hairdressing
    Private ski guides, heli-skiing and ski lessons
    Non-skiing activities
    Pre-arrival shopping service
    Helicopter transfers
    Party planning
    Corporate event planning
    Catering
    Cost of food, drink & alcohol
    Local taxes & service charges

    Please enquire about any other specific
    service requests.

  • We know all of our resorts! We can advise and make bookings for heli-skiing, trusted child care, the best places to eat, ski schools, apres ski as well as everything else!

    All of our luxury chalets are hand picked and meet our luxury criteria. We’ll match you with a chalet that suites your desires for any occasion!

    Let The Luxury Chalet Company take care of you. We’ll handle your booking from start to finish and ensure a smooth and easy booking process!

    Concierge Services

  • WE’RE AVAILABLE 24/7
    Our phone line is open 7 days a week
    Mon to Fri 8.30am to 6pm
    Sat 9am to 5pm & Sun 10am to 4pm
    CALL US: 020 7097 3156
    EMAIL: info@luxurychaletco.com
    LIVE CHAT (desktop only)
    • QUESTION ABOUT THIS PROPERTY?

    x
    From 50,000 to 140,000 /week