Reset Password

Your search results

Chalet Cervinia

-

1366390 m2

Description

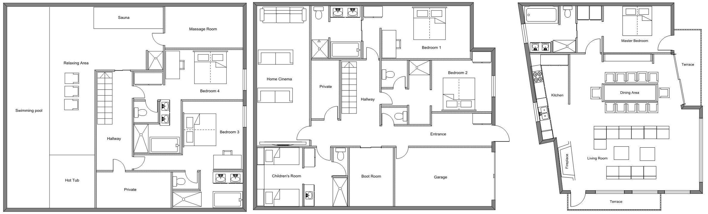
Chalet Cervinia is a brand-new, stand-out luxury ski chalet in the heart of Val d’Isère. Nestled in the quiet, charming Le Joseray area of the resort, this three-storey alpine hideaway blends classic mountain charm with contemporary design and top-tier facilities, making it an exceptional choice for families or groups seeking both comfort and style in the French Alps.

Just under 100 metres from the Joseray piste, you’re perfectly placed for easy access to Val d’Isère’s famed ski terrain. The centre of the village, with its restaurants, shops and lively après-ski scene, is only a short stroll away, giving a delightful balance of tranquillity and convenience.

At the heart of the chalet is a spacious open-plan living and dining area with floor-to-ceiling windows, wooden beams, stylish lighting and sun-soaked balconies facing south and east, offering stunning views of the surrounding mountains.

Chalet Cervinia boasts a range of high-end leisure spaces designed for both relaxation and entertainment: Indoor spa and wellness area with a hot tub, sauna and massage room, large indoor swimming pool with a striking sapphire hue and home cinema room featuring tiered seating and a “starry-night” ceiling for cosy movie nights

Each of the six bedrooms, including a dedicated children’s bunk room, comes with its own en-suite bathroom, ensuring privacy and comfort for up to 13 guests.

The interior design harmoniously marries traditional alpine character with modern touches such as geometric patterns, contemporary furnishings and a grand fireplace, creating a warm and inviting atmosphere after a day on the slopes.

View more
Features
Amenities
Balcony or Terrace
Family/Kid Friendly
Fireplace
Non Smoking
Ski Room
Wifi
Catering Options
B&B
Catered
Self Catered
Facilities
Cinema/TV Room
Hot Tub
Massage Treatment Room
Sauna
Swimming Pool
Rental Period
Weekly
Bedrooms
Bedroom 1
Double/twin bedroom with ensuite bathroom with shower
Bedroom 2
Double/twin bedroom with ensuite shower room
Bedroom 3
Double/twin bedroom with ensuite bathroom with shower
Bedroom 4
Double/twin bedroom with ensuite bathroom with shower
Bedroom 5
Kids bunk bedroom (sleeps 3) with ensuite shower room
Bedroom 6
Double/twin bedroom with balcony access, dressing area, and ensuite bathroom
Listing Details
Property ID: 85063
Property Size: 390 m2
Rooms: 0
Bedrooms: 6
Bathrooms: 6
Security Deposit: Confirmed on booking
Family Friendly: Yes
Additional Guests : Please enquire
Self Check-in: No
Staffed Property: Yes
Terms and Conditions
Smoking Allowed
Pets Allowed
Party Allowed
Children Allowed
Please enquire
Price Details
From 40,000 to 100,000 /week
Price for 7 nights:
The booking price is quoted in the local currency for the exclusive use of the property*
Catered
B&B
Self Catered

Catered Prices IncludeB&B Prices IncludeSelf Catered Prices Include
france/val-disere/chalet-cervinia
POA = Price On Application
Availability and final pricing are always confirmed on booking and subject to change
*some properties may have shared external facilities and this will be explained in the property description above
Property Address
Address: Rue du Joseray
Region:
Ski Resort:
Ski Pass Area: L'Espace Killy
Zip: 73150
Country: France
Distance to piste: 100 metres
Distance to lifts: 2 minute drive to l’Olympique or Solaise Express
Distance to resort centre: 10 minute walk or 2 minute drive

On the Map

From 40,000 to 100,000 /week
×

Check Availability

Add to Favorites
Share
  • Please note: our average rental period during
    high season is weekend to weekend,
    minimum 7 nights. Please contact us
    for shorter stays.
  • Booking with The Luxury Chalet Company

     

    Best Rates – all of our luxury chalets are offered on a price match promise. If you find cheaper prices, let us know and we’ll try our best to beat it.

    Concierge Service – all bookings come with a personal concierge service. Let us tailor make your holiday for a truly unforgettable experience.

    Why Book With Us?

  • ADDITIONAL SERVICES & COSTS
    (unless otherwise stated)
    Flights
    Private transfers to and from resort
    Lift passes
    Ski equipment hire
    Childcare
    In-chalet massage and hairdressing
    Private ski guides, heli-skiing and ski lessons
    Non-skiing activities
    Pre-arrival shopping service
    Helicopter transfers
    Party planning
    Corporate event planning
    Catering
    Cost of food, drink & alcohol
    Local taxes & service charges

    Please enquire about any other specific
    service requests.

  • We know all of our resorts! We can advise and make bookings for heli-skiing, trusted child care, the best places to eat, ski schools, apres ski as well as everything else!

    All of our luxury chalets are hand picked and meet our luxury criteria. We’ll match you with a chalet that suites your desires for any occasion!

    Let The Luxury Chalet Company take care of you. We’ll handle your booking from start to finish and ensure a smooth and easy booking process!

    Concierge Services

  • WE’RE AVAILABLE 24/7
    Our phone line is open 7 days a week
    Mon to Fri 8.30am to 6pm
    Sat 9am to 5pm & Sun 10am to 4pm
    CALL US: 020 7097 3156
    EMAIL: info@luxurychaletco.com
    LIVE CHAT (desktop only)
    • QUESTION ABOUT THIS PROPERTY?

    x
    From 40,000 to 100,000 /week